NEW
小田原飯田岡分譲地|特別相談会を開催

開催日
2025年11月1日(土)~12月31日(水)
時間
10:00 ~ 18:00
会場
スギホーム小田原店・平塚店
【全2区画中最終1区画】飯田岡の人気エリアに新しい邸宅街が誕生
“弊社限定”新発表!小田原飯田岡分譲地 販売開始
2025年12月末完成予定。
人気の小田原エリア、全2区画の分譲地が誕生します。
- 大雄山線「飯田岡」駅まで徒歩3分、小田急線「富水」駅まで17分で2路線利用可能
- 富水小学校まで徒歩1分、泉中学校まで徒歩10分で教育環境が整った安心な住まい
- 日用品・食料品・医薬品等そろっているクリエイトまで徒歩6分と便利な立地
- 住民窓口や図書コーナー・キッズルーム等がある公共施設「城北タウンセンターいずみ」まで徒歩5分
- 子育て世代が増えている人気のエリア
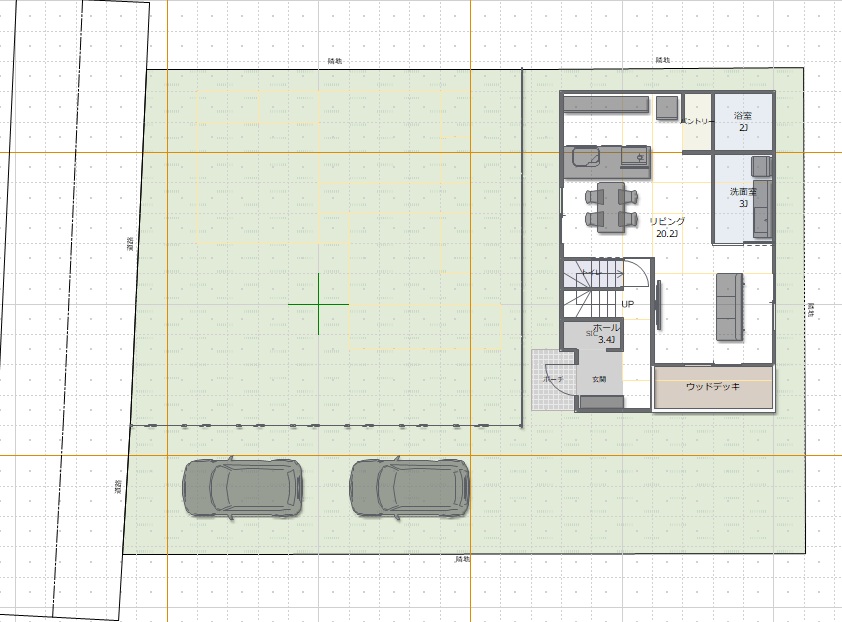
区画の魅力
- 並列2台駐車可能で、車も心もゆとりある暮らし
- 南側が通路で開けているので陽当たり良好
- 収納充実&家事ラク!SIC・パントリー・ランドリールーム完備の快適住宅が設計可能
- 40坪超のゆとりある敷地で、ガーデニングやお子様の遊び場など思いのまま自由設計
物件詳細&参考プラン
【販売価格】1,580万円
【区画数】全2区画 ※残り1区画のみ
【土地面積】132.24㎡
【住所】小田原市飯田岡496-10の北側


終了



特別相談会
競争率の高いエリアだからこそ、「気づいたら売れてしまっていた…」ということがないように、どなたでもわかりやすい相談会を企画しました。
小田原市での家づくりを検討されている方は、この機会にぜひご参加ください。
ご来場者様限定特典
①周辺の販売中の物件すべて情報提供できます。
②一級建築士による各区画の参考プランが見られます。
③間取り作成から提案まで無料で行えます。
④家づくりの総費用が詳しく分かります。
⑤耐震・断熱・省エネ・防蟻対策の仕組みが見られます。
▼下記フォームよりお気軽にお申込みください!






