NEW
松田町松田分譲地|特別相談会を開催

開催日
2026年3月1日(日)~2026年3月31日(火)
時間
10:00 ~ 18:00
会場
スギホーム小田原店・平塚店
【第Ⅰ・Ⅱ・Ⅲ期全6区画分譲地】人気の松田町に新しい邸宅街が誕生
“弊社限定”新発表!松田町松田分譲地 販売開始
【2026年3月末完成】
人気の松田町エリア、全6区画の分譲地が新たに誕生します。
- 小田急線「新松田」駅まで徒歩5~10分、御殿場線「松田」駅まで徒歩8分~10分で2路線利用可能
- 松田小学校まで徒歩11分~17分、松田学校まで徒歩1分~14分で教育施設が整った安心な住まい
- 日用品・食料品・医薬品等そろっているクリエイト・コンビニ等が揃う充実した環境
- 東名高速道路「大井松田IC」も近く、お出かけにも便利な立地
- 都市の便利さと、穏やかな環境で心地よい生活
区画の魅力
- 駐車ペース2台分可能で、車も心もゆとりある暮らし
- 車通りも少なく、落ち着いた住環境で、お子様のいるご家庭にも安心
- 収納充実&家事ラク!SIC・パントリー・ランドリールーム完備の快適住宅が設計可能
- 全区画40坪超のゆとりある敷地で、ガーデニングやお子様の遊び場など思いのまま自由設計
物件詳細&参考プラン
【販売価格】1,098万円~1,698万円
【区画数】全6区画
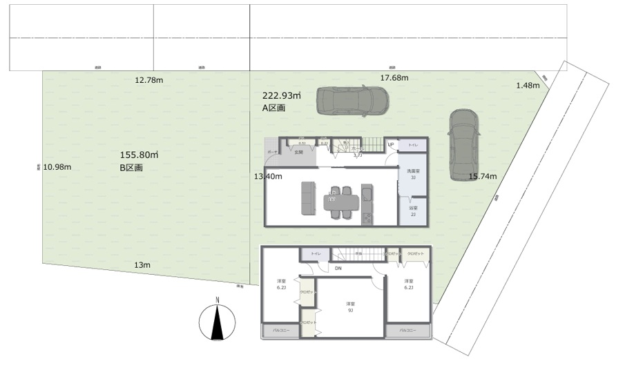
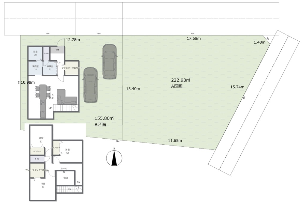
【土地面積】150.44㎡~222.93㎡
【住所】松田町松田惣領776-1(Ⅰ期2区画)・松田町松田惣領832(Ⅱ期2区画)・松田町松田庶子1446-15(Ⅲ期2区画)
Ⅰ期全体区画図&参考間取図



Ⅱ期全体区画図&参考間取図



Ⅲ期全体区画図


特別相談会
競争率の高いエリアだからこそ、「気づいたら売れてしまっていた…」ということがないように、どなたでもわかりやすい相談会を企画しました。
松田町での家づくりを検討されている方は、この機会にぜひご参加ください。
ご来場者様限定特典
①周辺の販売中の物件すべて情報提供できます。
②一級建築士による各区画の参考プランが見られます。
③間取り作成から提案まで無料で行えます。
④家づくりの総費用が詳しく分かります。
⑤耐震・断熱・省エネ・防蟻対策の仕組みが見られます。
▼下記フォームよりお気軽にお申込みください!






